HVG MARINE VENTILATION EQUIPMENT 0070: Dòng chảy hướng trục áp suất cao CLZ Marine Fa
Ứng dụng
Quạt hướng trục hàng hải CLZ được thiết kế chủ yếu để thông gió cabin, cấp khí hoặc hút gió. Không khí được cung cấp có thể chứa sương muối hoặc hơi axit từ pin. Nhiệt độ của không khí không thể vượt quá 50 độ C.
Kết cấu

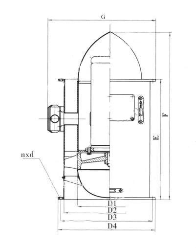
Quạt hướng trục hàng hải CLZ bao gồm cánh quạt, vỏ, động cơ, trục dẫn hướng, bộ chỉnh lưu, v.v.
- 1. Vỏ được làm bằng thép tấm có đủ độ dày, cấu tạo gồm một trụ trong, một vỏ và một cánh dẫn dòng xuống. Vỏ có các mặt bích trên đầu vào và đầu ra để kết nối với các ống dẫn. Xylanh bên trong và vỏ được kết nối với cánh dẫn hướng dòng xuống được sử dụng để dẫn dòng khí.
- 2.Motor là động cơ đặc biệt được sản xuất bởi nhà máy động cơ chuyên nghiệp. Nó hoàn toàn được bao bọc, làm mát tự nhiên và có khả năng chống lại sương muối, va đập và rung động. Động cơ được lắp bên trong xi lanh bên trong, loại động cơ điện là động cơ điện hàng hải ZZT-H (220V) hoặc động cơ điện hàng hải YH (220V / 380V)
- 3. Cánh quạt được làm bằng hợp kim nhôm đúc chống ăn mòn, được cân bằng cẩn thận và gắn trực tiếp trên phần mở rộng trục động cơ.
- 4.Bộ dẫn hướng được lắp ở phía đầu vào, bộ chỉnh lưu được lắp ở phía đầu ra. Do đó giảm độ xoáy của luồng không khí và tăng hiệu suất của quạt. Vật liệu của GRP.
- 5. quạt được sơn bằng sơn lót và sơn biển.



