• VENTILATION EQUIPMENT 0048 VENTILATION EQUIPMENT 0048
    HVG MARINE VENTILATION EQUIPMENT 0048

    HVG MARINE VENTILATION EQUIPMENT 0048: Bộ giảm chấn lửa hình chữ nhật

    Ứng dụng:

    • Hình dạng của van chữa cháy là hình chữ nhật và kết cấu được làm bằng thân, trục, đĩa van,, vật liệu là thép không gỉ và có thể xoay theo yêu cầu của bạn, Loại van điều tiết chữa cháy này được ứng dụng rộng rãi trong hệ thống điều hòa không khí hoặc hệ thống thông gió cho hàng hải hoặc một nơi khác để tránh lửa hoặc somke.
    • Van điều tiết lửa có thể được điều khiển bằng nhiệt độ và nó có thể tự động đóng lại bằng điện. Van điều tiết lửa mở trong điều kiện bình thường, Nếu nhiệt độ của không khí trong ống van điều tiết vượt quá 70 ℃ , Liên kết dễ chảy của van điều tiết sẽ bị hỏng để đóng lửa van điều tiết.
    • Thời gian cho vật liệu chịu lửa là 1,5 giờ, Tín hiệu điện có thể được xuất ra theo yêu cầu của người dùng , Van điều tiết lửa phải được thiết lập lại bằng tay.

    Đặc tính:

    • 1. xây dựng bằng thép không gỉ để ngăn lửa và khói.
    • 2. thời gian cho vật liệu chịu lửa là 1,5 giờ.
    • 3.Hệ số trở lực nhỏ hơn 0,4.
    • 4. Van điều tiết sẽ tự động đóng khi nhiệt độ là 70 ℃.
    • 5.Chiều cao của cơ thể là 210mm.
    • 6. kích thước đặc biệt có thể được cung cấp.

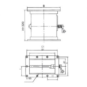
    Bản vẽ quy trình:

     

    Technical specification:

    • Available size:

    Nom.dia
    DN

    Dia of rectangular

    Flange inner size

    Flange outter size

    Distance of hole

    Distance of bolt holes

    No.of bolt holes

    DN

    a

    b

    a 1

    b 1

    A

    B

    C

    C1

    t

    t 1

    Short
    side

    Long
    side

    total

    100

    60

    140

    65

    145

    115

    195

    95

    176

    95

    88

    0

    3

    6

    80

    120

    85

    125

    135

    175

    115

    156

    115

    78

    125

    60

    220

    65

    225

    115

    275

    95

    225

    95

    85

    4

    8

    80

    160

    85

    65

    135

    215

    115

    196

    115

    98

    3

    6

    100

    130

    105

    135

    155

    185

    136

    166

    68

    83

    1

    8

    150

    80

    250

    85

    225

    135

    305

    115

    285

    115

    95

    0

    4

    100

    200

    105

    205

    155

    255

    136

    236

    68

    118

    1

    3

    120

    150

    125

    155

    175

    205

    156

    286

    78

    93

    175

    80

    350

    85

    355

    135

    405

    115

    388

    115

    97

    0

    5

    10

    100

    250

    105

    255

    155

    305

    136

    285

    68

    95

    1

    4

    120

    210

    125

    215

    175

    265

    156

    246

    78

    82

    200

    100

    350

    105

    355

    155

    405

    136

    388

    68

    97

    5

    12

    120

    280

    125

    285

    175

    335

    156

    315

    78

    105

    4

    10

    150

    220

    156

    226

    206

    276

    186

    258

    93

    86