Mô tả Sản phẩm
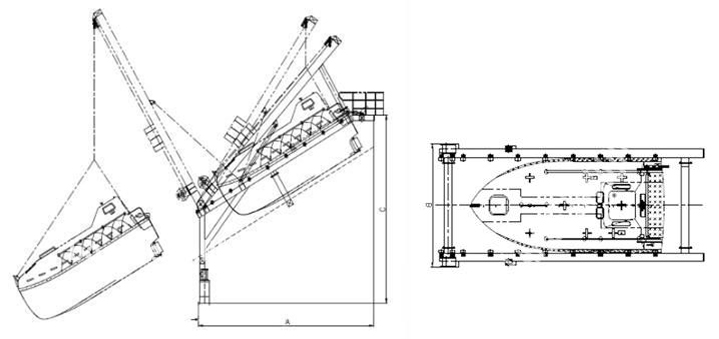
HVG MARINE DECK EQUIPMENT 0012 được đặt ở đuôi tàu bao gồm một tay đòn, tời và bộ phận thủy lực. Thiết bị này có thể làm cho xuồng cứu sinh hạ cánh tự do xuống mặt nước trong trường hợp khẩn cấp hoặc trong trường hợp cắt 20 ° và kê 10 °. Nó đáp ứng các yêu cầu của Quốc tế về An toàn sinh mạng trên biển 1974, IMO, MSC. 81 (70) và các quy định khác.
HVG MARINE DECK EQUIPMENT 0012:
- Nhanh chóng thoát khỏi tàu chìm
- Luôn ở chế độ chờ khởi chạy
- Đường dốc phóng cho xuồng cứu sinh rơi tự do trong quá trình thực hiện dầm hộp hàn hoặc mặt bích
- Thích hợp cho tất cả các loại thuyền rơi tự do
- Kích thước / kích thước khác có sẵn theo yêu cầu
Đặc điểm kỹ thuật cơ bản cho yêu cầu:
- Công suất nâng cần thiết
- Phạm vi tiếp cận – tối thiểu / tối đa
- Độ cao nâng
- Tốc độ nâng
- Thời gian lái tàu theo chiều gió
- Trọng lượng của thiết bị
- Gói năng lượng: (thủy lực, điện hoặc bất kỳ loại nào khác)
- Nguồn năng lượng
- Các phân loại xã hội bắt buộc



